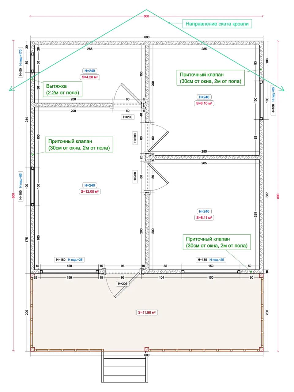
Дом 6х8м 48м²
  • Теплый контур 36м², терраса 12м²
    Комплектация дома:
    - сваи 89х2000х150мм
    - окна ПВХ однокамерные белые: 2шт 100х100, 2шт 150х180, 1шт 50х50
    - входная дверь металлическая с утеплением
    - на террасе обрезная доска 25х150
    - внутри полы осб под финишное покрытие
    - потолок ровный, высота потолка 2.4 метра, высота конька 1.4 метра
    - отделка снаружи имитация бруса камерная сушка
    - отделка внутри вагонка-штиль камерная сушка
    - кровля металлочерепица (любой цвет)
image alt
image alt
image alt
image alt